Home - Norwalk Tank Company, Joliet Illinois
 

Frequently Asked Questions   |   Careers   |   Contact Us   |   Home    

 
 
 

Home Sewage Treatment . . .

Home Sewage Treatment
 

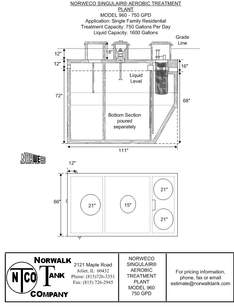
Click on System size to see specific system drawing:

 
2 Year Service Contract is included in the purchase price.
Northern Illinois' licensed Norweco® Distributor.
 
Norwalk Tank Company
Norwalk Tank Company IL
 

© copyright 2010-2024 Norwalk Tank Company. All Rights Reserved.
Hosted & Designed by WebpagesByMom